$450,000 Sale
Listed 11 days ago
121 HARVEST RIDGE Drive
· 3
· 3.50
· 2
· 1614.60
Key Facts
Key facts for 121 HARVEST RIDGE Drive
Property Type
House, 2 Storey
Parking
Double Garage Attached,Front Drive Access,Insulated,RV Parking 2 garage, Double Garage Attached,Front Drive Access,Insulated,RV Parking 4 parking
MLS®
E4458760
Size
1614.60 sqft
Basement
Full,Finished, Fully Finished
Listed on
-
Lot size
-
Tax
-
Days on Website
-
Year Built
2018
Maintenance Fee
-
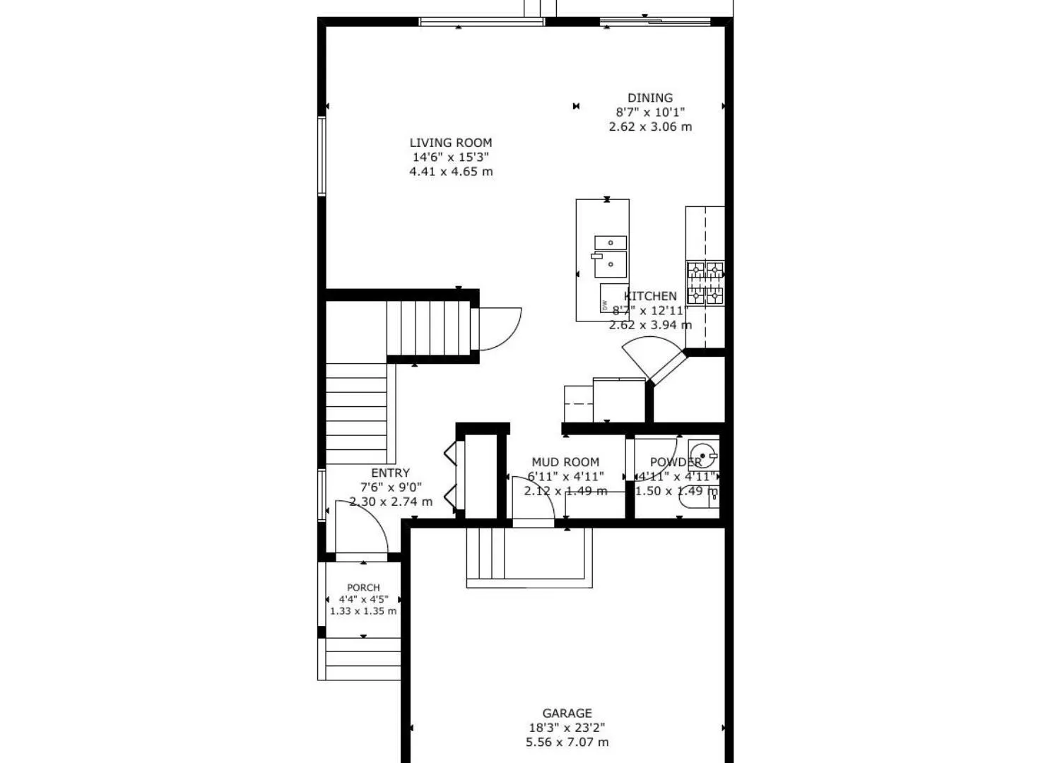
Description
2018-built half duplex with attached double garage (19Wx24L, insulated) steps to walking trails & Atim Creek Natural Area in Harvest Ridge. This beautiful 1,600 square foot (plus full basement) home features central air conditioning, TOP FLOOR LAUNDRY room and a fantastic open floor plan. On the mai...n level: 2-piece powder room, spacious living room, dining room with deck access and gourmet kitchen with granite counters, eat-up island and corner pantry. Upstairs: 2 full bathrooms and 3 bedrooms including the owner’ suite with walk-in closet and 4-piece ensuite. Finished basement with 4-piece bathroom and a large family room that is pre-wired with projector lines. Fantastic back yard; fully fenced, landscaped, deck, huge patio with gazebo & storage shed. No condo fees or HOA fees. Great location near schools, Tri Leisure Centre and easy access to Yellowhead Highway. Must see!
Similar Properties (No results)
Courtesy of: Carson K Beier, Royal LePage Noralta Real Estate